Jak czytamy w uzasadnieniu do projektu, część mieszkańców Wysokiego Brzegu wprost wyrażała sprzeciw wobec nowej zabudowy w tym obszarze. Uwzględniono te głosy, nie wyznaczając nowych terenów pod zabudowę mieszkaniową (poza istniejącymi budynkami) ani usługowo-produkcyjną, co ma chronić sąsiadów przed pogorszeniem warunków zamieszkania. Byli też przeciwko degradacji środowiska. W odpowiedzi na te obawy, w projekcie wprowadzono m.in. zakaz gospodarowania odpadami oraz zakaz uciążliwego użytkowania terenu. Czekamy na podanie terminu konsultacji społecznych.
Urząd Miejski w Jaworznie przygotował projekt miejscowego planu zagospodarowania przestrzennego (MPZP) dla obszaru położonego przy ul. Mysłowickiej. Dokument ten ma stać się kluczowym narzędziem w walce z nielegalną eksploatacją piasku oraz składowaniem odpadów w tym rejonie. Miasto stawia na ochronę cennego korytarza ekologicznego Doliny Przemszy. Kolejnym etapem będą konsultacje społeczne, ale ich termin nie został jeszcze podany. Zarówno treść porjektu jak i uzasadnienie oraz grafikę zamieszczam na końcu artykułu jako załączniki.
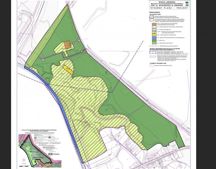
Obszar objęty nowym planem obejmuje około 41,8 ha w zachodniej części miasta, przy granicy z Mysłowicami. Jak czytamy w uzasadnieniu, decyzja o przystąpieniu do sporządzenia dokumentu wynika bezpośrednio z problemów, z jakimi borykał się ten teren w ostatnim czasie. Kontrole wykazywały przypadki nielegalnego wydobycia piasku oraz pozostawiania odpadów budowlanych.
Nowe przepisy mają raz na zawsze ukrócić ten proceder. Jak czytamy w uzasadnieniu, plan nie tylko wprowadza restrykcje, ale staje się podstawą prawną ułatwiającą podejmowanie decyzji przeciwko osobom degradującym środowisko.
Mając na uwadze wielokrotnie przeprowadzane kontrole przez inne organy dotyczące prowadzonej działalności w zakresie nielegalnej eksploatacji piasku w tym terenie, składowania odpadów budowlanych oraz fakt, że we wskazanym terenie nie ma obowiązującego miejscowego planu zagospodarowania przestrzennego, proponuje się przystąpienie do sporządzenia planu, w którym zostaną wpisane ograniczenia związane z gospodarką odpadami, możliwą eksploatacją i zakresem inwestowania. Zapisany w Studium kierunek przekształceń będzie miał tu priorytet. Plan nie rozwiąże kompleksowo nielegalnych działań w tym terenie ale stanie się narzędziem ułatwiającym podejmowanie decyzji prawnych w tym zakresie.
Reklama

Projekt planu stawia na zachowanie naturalnego charakteru tego miejsca. Dla ochrony przyrody, przeważająca część terenu została przeznaczona pod lasy (symbole L), rolnictwo z zakazem zabudowy oraz zieleń naturalną (RN-ZN). Ma to na celu zabezpieczenie regionalnego korytarza ekologicznego rzeki Przemszy.
Dolina Przemszy pełni funkcje różnych typów korytarzy ekologicznych: ichtiologiczne, ornitologiczne, chiropterologiczne oraz spójności obszarów chronionych.
W całym obszarze objętym planem wprowadzono kategoryczny zakaz składowania i przetwarzania odpadów. Zakazano także tzw. „uciążliwego użytkowania terenu”. Oznacza to, że nie będzie można tam prowadzić warsztatów rzemieślniczych, produkcyjnych, tworzyć dużych magazynów ani parkingów dla ciężarówek i maszyn budowlanych
Plan honoruje jedynie istniejące budynki mieszkalne i zagrodowe (MNW i RZM). Wykluczono możliwość powstawania nowej, intensywnej zabudowy deweloperskiej, takiej jak szeregówki czy bliźniaki. W uzasadnieniu podano także, że niektóre wnioski mieszkańców wprost wyrażały sprzeciw dla zabudowy w obszarze planu, a zwłaszcza dla funkcji degradujących środowisko jak eksploatacja przemysłowa czy składowanie odpadów.
Wprowadzenie planu jest odpowiedzią na głosy mieszkańców pobliskiego osiedla Wysoki Brzeg. Wnosili oni o ochronę lasów i wód oraz wyrażali stanowczy sprzeciw wobec funkcji degradujących środowisko. Proces planistyczny zapewnia mieszkańcom czynny udział w kształtowaniu przestrzeni. Wkrótce powinniśmy poznać datę konsultacji społecznych.
Chcesz być na bieżąco z wieściami z naszego portalu? Obserwuj nas na Google News!
Twoje zdanie jest ważne jednak nie może ranić innych osób lub grup.
GLOS MIESZKANCOW brany pod uwage? nie wierze co czytam - gdzie ? w jaworznie ? przez jaworznickich monowladcow ? pieklo zamarza ...
GLOS MIESZKANCOW brany pod uwage? nie wierze co czytam - gdzie ? w jaworznie ? przez jaworznickich monowladcow ? pieklo zamarza ...